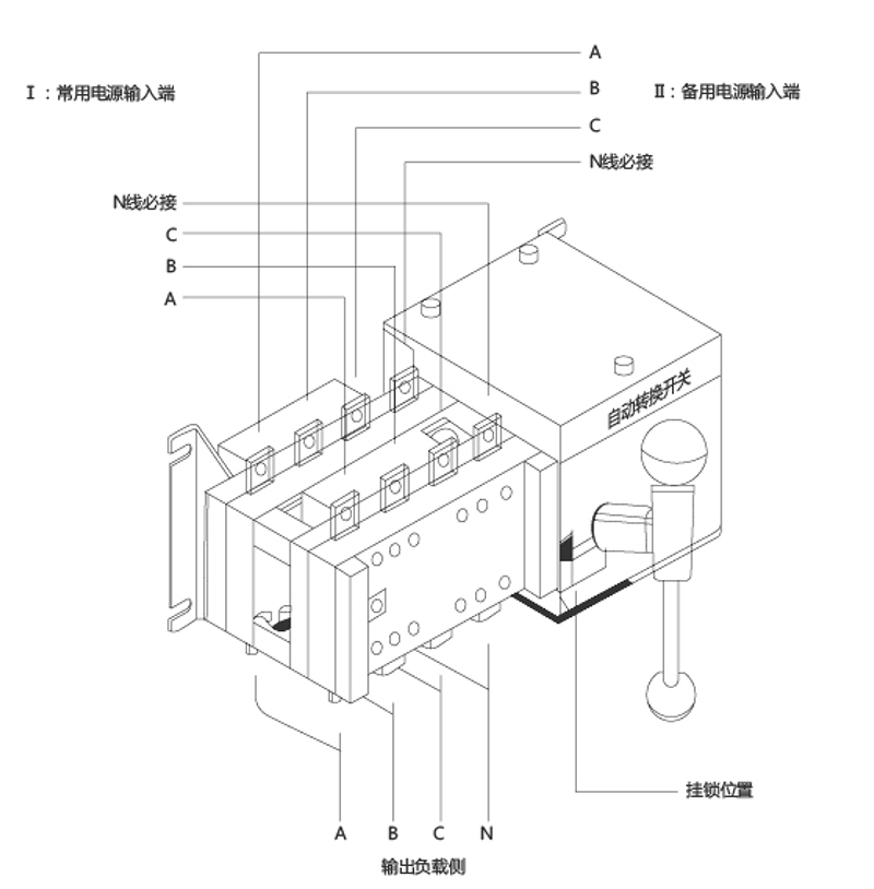
DJQ5(PC 級)系列隔離型雙電源自動轉換開關,是集開關與邏輯控制于一體,真正實現機電一體化的自動轉換開關,具有電壓檢測、頻率檢測、 通訊接口、電氣、機械互鎖等功能,可實現自動、電動遠程、緊急手動控制。
操作是由邏輯控制板以各種邏輯命令來管理電機、變速箱的操作運行來實現,電機帶動開關彈簧蓄能,瞬時釋放的加速機構,快速接通分 斷電路或進行電路轉換,通過明顯可見狀態實現安全隔離,極大的提高了各項電器性能與機械性能。
DJQ5 開關整體設計為大理石型外形,小巧堅固。具有較強的介電性能、防護能力和可靠的操作安全性。
開關適用于供電系統的主電源與備用電源之間自動轉換或兩臺負載設備的自動轉換及安全隔離等。開關造型美觀、新穎、簡潔、體積小、 功能全,是不同場合的理想選擇。
產品符合標準:GB/T14048.11-2016《 低壓開關設備和控制設備第6部分;多功能電器第1篇:自動轉換開關電器》。
DJQ5 自動轉換開關主要用于交流50Hz, 額定電壓400V, 額定電流16~3200A 的配電或電動機網絡中一主一備或互為備用電源轉換系統及 市電和發電機組的負荷轉換。同時可用子不頻繁接通與分斷電路的隔離之用。
產品廣泛應用消防:醫院、銀行、高層建筑等不允許斷電的重要供電場所的輸、配電系統及自動化系統。



規格 | 外形尺寸與安裝尺寸(mm) | ||||||||||||||||||
In | A | A1 | B | C | E | G | J | K | L | N | P | R | S | T | U | W | φX | Y | 92 |
100/3 | 260 | 235 | 120 | 170 | 145 | 115 | 220 | 83 | 6 | 85 | 30 | 13 | 18 | 2.5 | 106 | 126 | 6 | 40 | 92 |
100/4 | 272 | 244 | 120 | 170 | 145 | 115 | 231 | 83 | 6 | 85 | 30 | 13 | 18 | 2.5 | 106 | 126 | 6 | 40 | 130 |
160/3 | 320 | 268 | 142 | 226 | 194 | 145 | 254 | 102 | 6.5 | 92 | 36 | 20 | 25 | 3.5 | 124 | 156 | 9 | 60 | 130 |
160/4 | 350 | 297 | 142 | 226 | 194 | 145 | 285 | 102 | 6.5 | 92 | 36 | 20 | 25 | 3.5 | 124 | 156 | 9 | 60 | 146 |
250/3 | 355 | 310 | 175 | 242 | 210 | 145 | 295 | 93 | 7 | 92 | 50 | 25 | 30 | 3.5 | 134 | 165 | 11 | 64 | 146 |
250/4 | 408 | 362 | 175 | 242 | 210 | 145 | 345 | 93 | 7 | 92 | 50 | 25 | 30 | 3.5 | 134 | 165 | 11 | 64 | 146 |
400/3 | 470 | 376 | 262 | 325 | 275 | 191 | 360 | 180 | 8.5 | 79 | 65 | 32 | 40 | 5 | 218 | 189 | 11 | 83 | 197 |
400/4 | 532 | 435 | 262 | 325 | 275 | 191 | 425 | 180 | 8.5 | 79 | 65 | 32 | 40 | 5 | 218 | 189 | 11 | 83 | 197 |
630/3 | 470 | 376 | 272 | 325 | 275 | 191 | 360 | 180 | 8.5 | 79 | 65 | 40 | 50 | 5 | 218 | 189 | 12 | 83 | 197 |
630/4 | 532 | 435 | 272 | 325 | 275 | 191 | 425 | 180 | 8.5 | 79 | 65 | 40 | 50 | 5 | 218 | 189 | 12 | 83 | 197 |
100~3200全自動+發電機信號+遠控接線方式

